NEW CONSTRUCTION

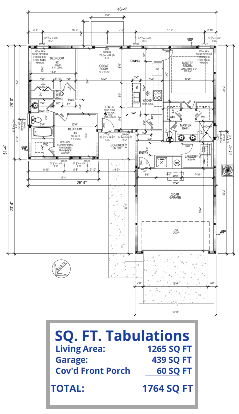
ohara Floor Plan

One-floor living at its finest, every detail has been carefully planned with elegance and functionality in mind. This sparkling home offers an aura of modern sophistication. Open Floor Plan along with high Ceilings, and beautiful flooring throughout the entire home.

OHARA Floor Plan
We use cookies
Cookie preferences
Below you may find information about the purposes for which we and our partners use cookies and process data. You can exercise your preferences for processing, and/or see details on our partners' websites.
Analytical cookies Disable all
Functional cookies
Other cookies
We use cookies to personalize content and ads, to provide social media features and to analyze our traffic. Learn more about our cookie policy.
I understand Details
Cookies